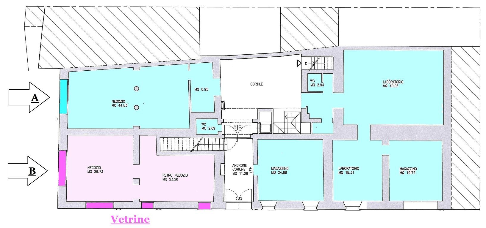
Rif 5683 - Ad. piazza Sordello. In zona di Fortissimo Passaggio nel centro storico della Città, Proponiamo 2 Immobili Commerciali a Reddito, entrambi locati con Regolari contratti 6+6. Negozio A: Mq 72 con Vetrina Fronte strada + Mq 145 Laboratorio/Magazzino/negozio + Cantina 130 mq + Servizi ( - Negozio B: Mq 72 con Servizi e Vetrine Fronte strada. Entrambi gli immobili hanno Utenze Autonome e spese Cond. Minime. Si precisa che verranno venduti in Blocco e non Singolarmente.
Per Info e Appuntamenti Lasciate il Vostro Recapito Telefonico, Sarete Ricontattati Quanto Prima
Cantina 130 mq, Giardino condominiale, Condizionatore
Classe G Ipe 300,57 KWh/m³a

Rif 5683 - Ad. piazza Sordello. In zona di Fortissimo Passaggio nel centro storico della Città, Proponiamo 2 Immobili Commerciali a Reddito, entrambi locati con Regolari contratti 6+6. Negozio A: Mq 72 con Vetrina Fronte strada + Mq 145 Laboratorio/Magazzino/negozio + Cantina 130 mq + Servizi ( - Negozio B: Mq 72 con Servizi e Vetrine Fronte strada. Entrambi gli immobili hanno Utenze Autonome e spese Cond. Minime. Si precisa che verranno venduti in Blocco e non Singolarmente.
Per Info e Appuntamenti Lasciate il Vostro Recapito Telefonico, Sarete Ricontattati Quanto Prima
Efficienza energetica Classe G Ipe 300,57 KWh/m³a